Wij gebruiken cookies om de website naar behoren te laten werken en te analyseren. Lees meer over ons Cookie en Privacybeleid.

Wijnbrugstraat, Rotterdam

Omschrijving

Zeer centraal gelegen appartement in hartje van Rotterdam tussen de Blaak, de Maasboulevard en op 5 minuten lopen van de Koopgoot en de Markthal. Nabij hotel/restaurant met terras aan het water. Goede verbinding naar de uitvalswegen A15/A16, het openbaar vervoer: tram, metro en trein (NS Blaak). De winkels (o. a. Koopgoot/Markthal/Lijnbaan), restaurants, uitgaansgelegenheden o. a. Witte de Withstraat, musea, sportvoorzieningen en de Maasboulevard bevinden zich allemaal op loopafstand.

Het recent gerenoveerde appartement ligt in hartje centrum op een zeer rustige plek en heeft werkelijk prachtig uitzicht over de Nieuwe Maas en de skyline van Rotterdam. Optimaal genot van uitzicht en mooi weer.

Begane grond:
Entree, lift/trappenhuis (met videobewaking)

20ste etage:
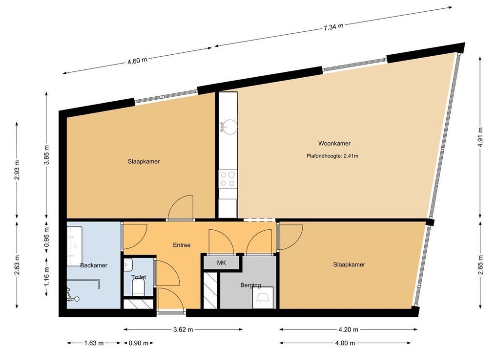
Het ruime en lichte 3-kamer appartement inclusief privé parkeerplaats bevindt zich op de 20e etage, waarbij u dus verzekerd bent van een prachtig en weids uitzicht over de Zuid- en Oostkant van deze prachtige stad.
Vanuit de hal heeft u toegang tot een nieuwe verbouwd toilet met fonteintje; zeer ruime berging met wasmachineaansluiting.

De badkamer is eveneens verbouwd en vanuit de hal te bereiken. Er bevindt zich een ruime inloopdouche en een extra brede wastafel.

Als u de woonkamer binnenloopt, wordt u overvallen door het licht en het spectaculaire uitzicht! De woonkamer en keuken zijn dankzij de vele ramen eveneens zeer licht en het zicht reikt richting Kralingen.

De strakke geheel ingerichte open keuken is voorzien van allemaal nieuw apparatuur die u nodig heeft zoals een koelkast, combi-magnetron, vaatwasmachine, keramische kookplaat en dergelijke.

De hal biedt toegang tot een ruime slaapkamer welke is voorzien van ruime inbouwgarderobekast. Middels de ruime raampartij kunt u van het zicht op de stad en omgeving genieten.
De tweede slaapkamer is voorzien van twee grote ramen die eveneens een fantastisch uitzicht bieden richting de Maas. 

Kortom, een fantastische woning voor single, stel of klein gezin dat graag rustig en comfortabel wil wonen maar toch midden in het centrum met alles wat de stad biedt, wil zijn.

Details:
 - het appartement is geheel opnieuw geschilderd en voorzien van een nieuwe tegel laminaatvloer;
 - geheel voorzien van dubbel glas;
 - verwarming en warm water middels stadsverwarming;
 - privé parkeerplaats is optioneel te huur ;
 - ruime privé berging op de begane grond;
 - gemeenschappelijke fietsenstalling aanwezig.

Aan de inhoud van deze aanbiedingstekst kunnen geen rechten worden ontleend.

Locatie

[ { "address": "Wijnbrugstraat 251", "zipCode": "3011 XW", "city": "Rotterdam", "lat": 51.9170362, "lng": 4.4879883, "heading": 0, "pitch": 0 } ]

Kenmerken

Aanvaarding

Prijs
€ 2.050 p.m. ex.
Inrichting
Gestoffeerd
Status
Beschikbaar
Oplevering
Per direct
Adres
Wijnbrugstraat
Postcode
3011 XW
Plaats
Rotterdam

Bouw

Soort appartement
Appartement, Appartement
Woonlaag
20
Soort bouw
Bestaande bouw
Bouwjaar
2004
Onderhoud binnen
Uitstekend
Onderhoud buiten
Goed

Oppervlakten en inhoud

Woonoppervlakte
ca. 75m²
Perceeloppervlakte
ca. 75m²
Oppervlakte woonkamer
ca. 35m²
Overig oppervlakte
ca. 40m²
Inhoud
ca. 205m³

Indeling

Aantal kamers
3
Aantal slaapkamers
2
Aantal badkamers
1
Aantal verdiepingen
1
Voorzieningen
Mechanische ventilatie, TV-Kabel, Lift, Privéparkeerplaats

Energie

Energielabel
B
Isolatie
Volledig geisoleerd
Warm water
Centrale voorziening
Verwarming
Stadsverwarming

Buitenruimte

Ligging
Aan het water, In centrum, Vrij uitzicht, In stadscentrum, Nabij openbaar vervoer, Nabij winkels, Privacy
Schuur
Inpandig

Garage

Soort garage
Parkeerplaats
Capaciteit
1

Vragen of een bezichtiging inplannen?

Vul het onderstaande formulier in en we nemen zo snel mogelijk contact met u op.


Uw bericht is naar ons verzonden. Wij nemen zo snel mogelijk contact met u op.

Sorry, we kunnen helaas niet met zekerheid vaststellen of je een mens of een geautomatiseerde bot/spammer bent. Hierdoor kunnen we het formulier dat je hebt ingevuld niet verzenden. Probeer het opnieuw of neem direct contact op met de makelaar via e-mail.

Er is iets mis gegaan met het versturen van het formulier.
Controleer of u alle velden (goed) heeft ingevoerd en probeer het nog een keer.

recaptcha
reCAPTCHA
PrivacyTerms

Plattegronden

Vergelijkbare woningen

Verhuurd
Boompjes Rotterdam
opleveringAppartement
oppervlakte56m²
slaapkamers1 kamers
€ 1.695 p.m. inc.
Verhuurd
Churchillplein Rotterdam
opleveringAppartement
oppervlakte77m²
slaapkamers2 kamers
€ 2.095 p.m. inc.
Verhuurd
Jericholaan Rotterdam
opleveringAppartement
oppervlakte160m²
slaapkamers4 kamers
€ 1.850 p.m. ex.